徐汇网站建设 - 徐汇设计网站
本文导读: 徐汇西岸中央公园规划徐汇西岸中央公园是徐汇滨江2025年的重磅规划项目,作为第七个百万方功能组团,旨在通过生态、居住及商业组合业态提升区域生活质量,成为城市绿色空间新亮点。
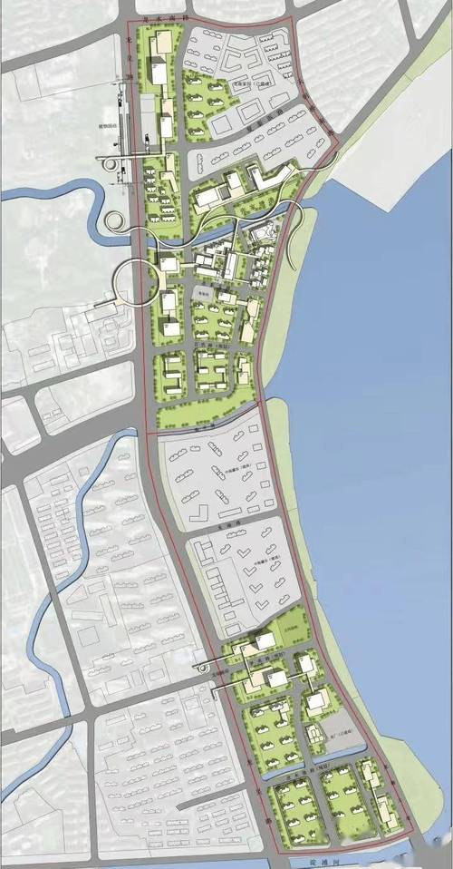
徐汇西岸中央公园规划
徐汇西岸中央公园是徐汇滨江2025年的重磅规划项目,作为第七个百万方功能组团,旨在通过生态、居住及商业组合业态提升区域生活质量,成为城市绿色空间新亮点。规划规模与位置该公园占地105万方,位于龙水南路 - 淀浦河区域,横跨中部融合更新区与南部战略拓展区,衔接西岸传媒港和西岸热力秀场,地理位置优越,是区域发展的重要节点。
资源优势:有多个行政机关,行政资源集中度较高;有丰富的教育资源及斗门文化艺术中心。规划部署:重点推动珠峰科创中心建成使用,加快推进建粤世界商务中心、富元城市综合体、黄杨·星河酒店项目建设,推动尖峰山公园升级改造为斗门中央公园,启动黄杨河湿地公园二期项目。
上海国庆节期间必去的景点有徐汇滨江、滨江大道、普陀TOP中央公园、国金体育中心、普陀XR敦煌展。徐汇滨江是国庆期间极具吸引力的景点。这里可以参观油罐艺术大赏《共生之茧》、光影花园、《流萤》出片点等众多艺术与光影展示。
晋阳湖较好的三个小区可以考虑万科中央公园、万科翡翠晋阳湖和圣湖佳园。万科中央公园:位于晋源龙盛街898号,于2022年建造,房龄较新。每平方米均价达18376元,体现了其较高的品质和价值。万科作为知名开发商,通常在小区规划、建筑质量和物业服务等方面有较好的保障。

徐汇城投和徐汇第四房屋征收事务所关系
『1』、徐汇城投(上海徐汇城市建设投资集团)与徐汇第四房屋征收服务事务所为母子公司关系,具体表现为以下三方面:股权控制:间接全资控股徐汇第四房屋征收服务事务所的唯一股东为上海汇成(集团)有限公司,而上海汇成(集团)是徐汇城投集团整合成立时的核心企业之一。
『2』、综上所述,从项目背景和合作方、项目定位以及社会责任等方面来看,徐家汇城投宽庭公寓无疑是正规且可靠的项目。因此,对于有意向租住该公寓的人来说,可以放心选取并享受其提供的优质服务。
『3』、城投宽庭徐汇社区的租金根据户型大小有所不同,一室户型费用区间为4493-7555元/月。以下是具体的租金情况:约32-39㎡的一房:租金4500元/月起。这种户型面积适中,适合单身人士或小家庭居住,租金相对较为经济。约41-59㎡的一房一厅:租金5500元/月起。
『4』、五险一金。上海徐汇城投待遇五险一金,年薪11万-17万,取自50份样本,可信度适中。上海市徐汇区城市建设投资开发有限公司,成立于1996年,位于上海市,是一家以从事房地产业为主的企业。企业注册资本3500万人民币。

上海第二焊接厂旧地址中山西路1001号
『1』、上海第二焊接厂原中山西路1001号地块现为商办综合体开发项目。依据2023年12月上海市徐汇区规划和自然资源局公示文件,该地块被纳入徐虹北片区城市更新单元,规划用地性质已调整为商业服务业与办公混合用地。近来建设工程规划许可证显示,地上建筑高度限制120米,地下规划两层停车场,总开发体量约6万平方米。

上海徐汇西岸模速空间:全国首个大模型创新生态社区探秘
『1』、综上所述,上海徐汇西岸的模速空间作为全国首个大模型创新生态社区,在空间概况、产业生态、平台建设、企业发展、人才特色和未来目标等方面都展现出了强大的竞争力和广阔的发展前景。随着入驻企业的不断增加和创新生态的不断完善,模速空间将成为推动人工智能技术创新和应用落地的重要力量。
『2』、此外,自2023年9月在徐汇区揭牌以来,“模速空间”作为全国首个大模型创新生态社区,已辐射带动全区汇聚近400家大模型企业,形成了良好的产业生态和创新氛围。这些企业涵盖了人工智能、大数据、云计算等多个领域,共同推动了上海乃至全国科技创新和产业升级的步伐。
『3』、徐汇区作为全国首批人工智能战略性新兴产业集群,敏锐地抓住了通用人工智能的变革趋势和产业风口,率先打造了全国首个大模型创新生态社区“模速空间”,并创建了上海人工智能大模型创新生态集聚区。
『4』、模速空间的物业具体信息尚未明确,无法确定具体有哪几家物业公司。分析说明:“模速空间”作为一个创新生态社区暨人工智能大模型产业生态集聚区,在2023年9月在上海徐汇区正式揭牌。这一社区由多家载体组成,例如东航滨江中心等,旨在打造一个集创新、研发、交流于一体的综合性平台。

徐汇区建设和交通委员会机构领导
『1』、徐汇区建设和交通委员会的机构领导包括:主任:许建华,他全面主持委员会的行政工作,是徐汇区建设与交通工作的比较高行政领导。副主任:吉祥,他专司建筑业管理,具体负责建委建筑业管理科的管理工作,同时监管建委直属单位的招投标工作,以及建管所和质监站的运作。
『2』、徐汇区建设和交通委员会各科室职责如下:办公室:文秘工作:起草工作总结、计划和汇报文件,信息编辑上报,进行调研。公务协调:协助领导进行月度目标考核、市区项目督办、行政执法指导检查、行政复议等。信息化管理:负责网站信息维护、计算机设施养护。其他事务:信访、外事、档案、会务、文件处理和后勤等工作。
『3』、到了2008年10月,刘海生的职位再次升级,他被任命为上海市城乡建设和交通委员会的副主任,并同时担任上海市住房保障和房屋管理局局长,以及党组书记,这一系列职务的变迁体现了他在城市建设与住房管理领域的深度参与和领导地位。
『4』、上海市徐汇区科学技术委员会的领导成员分工如下:主任李侃:全面负责:委员会、科协、知识产权局和地震办的工作。主要职责:贯彻执行区委、区政府的重要决策,管理科委、科协办公室,以及人事、财务等内部事务。副主任叶惠良:分管:科普部、学会部以及民营科技企业党委办公室。
『5』、上海市徐汇区科学技术委员会:科委主要负责科技项目的申报、审批和管理,以及科技创新政策的制定和实施。在行政服务中心,市民和企业可以询问和办理相关的科技项目申报和审批业务。
『6』、副局长,徐汇区副区长、区委常委。2009年08月,任上海市发展和改革委员会副主任,2011年1月起兼任上海市物价局局长。2013年03月,任上海市城乡建设和交通委员会主任。2014年02月,任上海市城乡建设和管理委员会主任。2015年01月,黄浦区委副书记、代区长。 2015年03月,黄浦区委副书记、区长。
